art_mansion_

Willa _ dla _ miłośnika _ sztuki

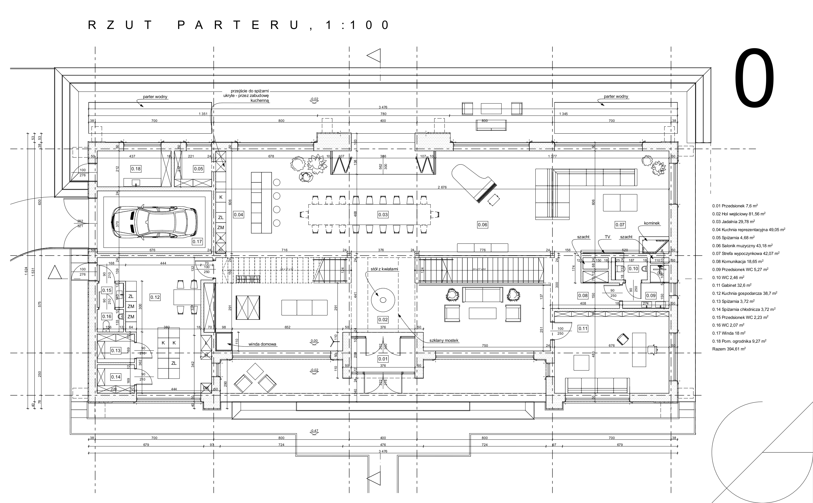
Nasza art_mansion raczej nie wzbudzi w Wilanowie kontrowersji. Ten budynek w stylu modern classic został zaprojektowany z myślą o miłośniku sztuki. Wokół i wewnątrz znajduje się przestrzeń, w której to rzeźby i obrazy mają być najważniejsze. Nad wyjściem z jadalni na taras mamy kamienny relief inspirowany neoplastycznym obrazem Mondriana. Wnętrza są nie mniej okazałe. Projekt powstał we współpracy z firmą Royal Partners Capital.

Właśnie _ czekamy _ na _ kolejne _ wyzwanie.

Nie _ pozwól _ nam _ się _ nudzić.

Skontaktuj _ się _ z _ nami.